招标信息
首都医科大学附属北京天坛医院眼科综合检查室及科技成果转化办公室改造工程招标要求
一、项目基本情况
预算金额:349146.43元(人民币)
建设单位:首都医科大学附属北京天坛医院
项目情况:
1、眼科检查室改造工程位于门诊一部四层西北角,改造面积约47平方米。
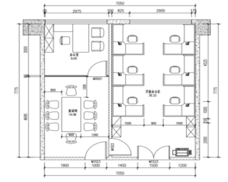
2、科技成果转化办公室改造工程位于B区行政科研楼2层的(C轴~D轴)/(2/B1轴~3/B1轴)间,改造面积约58平米。
二、工作内容
1、眼科检查室改造工程包含隔墙安装(高度至吊顶),新做涂料墙面、树脂板墙面。安装工位电源插座和信息插座及对应的电气线路,安装顶面照明灯具及对应的电气线路,安装洗手台盆及对应的给排水管道,装饰施工完成后,进行验收和室内环境质量检测。

(改造后平面图)
2、科技成果转化办公室改造工程为新建隔墙,强电、信息、空调、消防等各专业流水施工,装饰施工完成后,进行验收和室内环境质量检测。
(改造后平面图)
竣工需提交竣工图纸(纸质版三套、电子版一套)及工程、施工资料(按照北京市《建筑工程资料管理规程》DB11/T695-2017)。
3、工期计划:开工后60个日历天
4、主要工程量:
4.1、眼科检查室改造工程:
(1)装饰工程:石膏板隔断65.13㎡、墙面喷刷涂料新做65.13㎡、新装金属门2樘、天棚开检查口5个。
(2)安装部分:荧光灯5套、JDG20钢管100m、2.5㎡电线350m、接线盒33个、插座20个、地插座7个、配电箱1台、5*10电缆100m、DN20镀锌钢管120m、DN50聚丙烯静音排水管60m、台下式洗脸盆1套。
(3)弱电工程(管线预埋):JDG20钢管150m,穿引线150m,接线盒16个。
(4)配套施工工程量自行考虑。
4.2、科技成果转化办公室改造工程
(1)装饰工程: 石膏板隔断54.22㎡、玻璃隔断10.71㎡、喷刷涂料108.44㎡、玻璃门1.89㎡、钢质门8.05㎡、橡胶板卷材楼地面46.06㎡、地面橡胶踢脚线47.14m、波打线47.14m、天棚吊顶拆除53.4㎡、吊顶新做硅钙板53.4㎡。
(2)安装部分:JDG20钢管522m、墙面开槽51m、2.5㎡电线1566m、ABB16A-3P空气开关2个、5*5电缆46m、接线盒82个、荧光灯12套、插座17个、单联开关2个、三联开关1个、JDG20钢管455m。
(3)通风工程:DN32镀锌钢管192.09m、DN25镀锌钢管158.37m、DN20镀锌钢管160.66m、镀锌风管1.5mm17.03㎡、送风口,回风口8个、柔性软风管8节、支吊架制作,安装55kg、DN20球阀4个、DN20Y型过滤器4个、自动排气阀4个、锈钢软接头8个、电动两通阀4个、数字温控器4个、风机盘管4台。
(4)配套施工工程量自行考虑。
5、工程质量控制标准:本工程要求严格按照国家有关施工及验收规范、技术标准进行施工,工程质量等级为合格。
6、中标人根据本工程招标范围及要求进行施工,若局部工程需要中标人进行深化设计,中标人应提交深化设计,深化设计文件需获得建设单位的确认。除非发包人提出新的工作内容和要求,发包人不会因为中标人深化设计而再支付任何费用。
7、投标报价中应含所有材料、设备的检测、检验、调试等费用。按国家或地方标准规范要求的各项检验、检测、试验(包括施工过程中下发和执行的国家或地方规范要求等),其费用已包含在签约合同价中。如有特殊要求或争议,医院有权委托第三方检测,并由中标人承担检测费用。
8、中标人供应的材料、设备均须有出厂证明和质量证明。
三、投标人的资格要求:
1、在中华人民共和国境内注册,具有独立承担民事责任的能力和经营许可。
2、具有良好的商业信誉和健全的财务会计制度。
3、具有履行合同所必需的设备和专业技术能力。
4、有依法缴纳税收和社会保障资金的良好记录。
5、近三年内,在经营活动中没有重大违法记录。
6、只有在法律上和财务上独立、合法运作并独立于采购人的供应商才能参加此次投标。
7、单位负责人为同一人或者存在直接控股、管理关系的不同供应商,不得同时参加本项目。
8、近三年内(投标应答文件接收时间前)被“信用中国”网站列入失信被执行人和重大税收违法案件当事人名单的、被“中国政府采购网”网站列入政府采购严重违法失信行为记录名单(处罚期限尚未届满的),不得参与本项目。
9、不允许挂靠、借用资质行为。
10、符合法律、行政法规规定的其它要求。
11、具有有效的建筑工程施工总承包三级或以上资质、安全生产许可证。
四、打分表
序号 | 评分因素 | 分值 | 评分标准 |
1 |
报 价部分(20 分) |
投标报价(20 分) |
价格分数=(投标最低报价/投标报价)×价格权重(20%)×100 |
2 |
商务部分 (28分) |
企业业绩(9分) | 每提供一项50万元以上合同相关项目业绩得 3分,最高得9分; 注:业绩证明材料以合同协议书为准。 |
人员职称、年龄(3分) | 配备人员全部为高、中级职称,且年龄结构非常合理的得3分;配备人员以高、中级为主,年龄结构搭配合理的得 2分;配备人员以高、中级为主,年龄结构搭配较合理的得1分;人员职称、年龄结构搭配不合理的得0分。 | ||
人员专业配套(6分) | 专业配套合理齐全,满足本工程工作需要的得5-6分;专业配套基本齐全的得2-4分;专业配套不合理的得0-1分。注:拟派团队人员应提供身份证、本单位社保证明及其他证明资料。 | ||
项目经理(5) | 担任项目经理工作年限在 5 年以上的得4-5分,3年(含)~5年(含)的得2-3分,3年以下得0-1分 | ||
拟投入主要施工机械设备情况及自有或市场租赁设备占比 (5) | 拟投入主要施工机械设备不能满足工程要求的得0分;拟投入主要施工机械设备的配置基本满足工程要求的得 1-4 分;拟投入主要施工机械设备齐全,完全满足工程要求的得5分。 | ||
3 |
技术方案部分(52分) |
项目团队和岗位设置情况及职责划分 (10 分) |
评审委员会对投标文件进行逐项评审,按以下原则打分:优85%-100%;中: 70%-85%;一般 60%-70%:差:60%以下。 |
对本工程的重点、难点分析及对策(7分) | |||
施工方案(7分) | |||
质量控制及措施(7分) | |||
施工总体进度计划及保障措施(7分) | |||
安全措施(7分) | |||
环境保护及文明施工措施(7分) | |||
4 | 合计(100分) | ||
五、报名时间、方式、评选时间和地点
报名时间:2023年11月9日至2023年11月15日
报名方式:提交密封盖章的纸质版(北京天坛医院B区东门 田老师 15911058971 收 )
评选时间:2023年11月16日 10点00分
地点:首都医科大学附属北京天坛医院
六、对本次招标提出询问,请按以下方式联系。
邮箱:ttyyzgc@sina.com




















京公网安备111010602104056